Lej dette helt fantastiske sommerhus i særklasse

Afstand strand: 30 m Antal soverum: 4 Antal tilladte husdyr: 1 Husareal: 303 m2 Max antal personer: 8

Øjne i Natten - et sommerhus i særklasse!

Hos By Sommerhuse er vi stolte af at præsentere dette fantastiske, arkitekttegnede sommerhus i Blokhus. Det er godt, at der medfølger billeder, for man løber nærmest tør for ord, når ferieboligen skal beskrives - så speciel er den! Du er faktisk placeret på stranden, blot i ly af smukke klitter, så udsigten er uovertruffen og privatlivet sikret. De to store glaskupler - øjnene i natten - giver et fantastisk view over det udendørs landskab, og står du udenfor og kigger ind af kuplerne, vil du se henholdsvis et skønt køkken-alrum og en stue, man sjældent har set mage. Boligen byder tilmed på havudsigt.

Vi nævner i flæng om faciliteterne i sommerhuset: plads til 8 personer, en grund på over 7000 kvm med et boligareal på 303 kvm, hele 2 saunaer, udespa, indendørs dampbad og jacuzzi, solgård, strand indenfor 30 meter - begejstringen vil ingen ende tage!

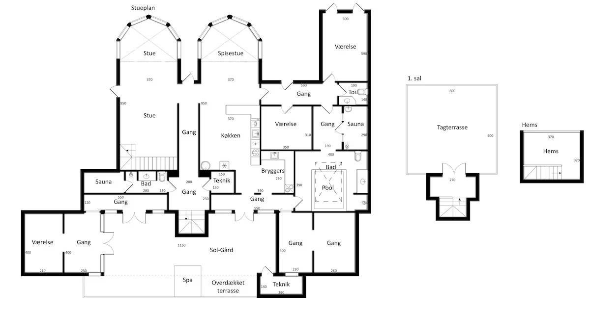
Detaljer om sommerhuset

Dette fantastiske og arkitekttegnede sommerhus ligger integreret i Blokhus' klitter, og i første klitrække. Der er tale om et karakteristisk kuppelhus, som er arkitekttegnet af danske Claus Bonderup, og hele boligen emmer af at være ekstraordinær. 

For det første er huset hele 303 kvm stort, og alt er smukt! Der er en spa- og wellnessfølelse over boligen, der er en lille perle bygget ind i Blokhus’ skønne klitlandskab. Du får dampbad, indendørs jacuzzi, udendørs spa, 2 saunaer og plads til 8 gæster. Ferieboligen har endda været udstillet på NYC's Museum of Modern Art for sit enestående design, og det forstår vi godt!

Fra huset køkken-alrum og stue ser du udenfor de store glaskupler Blokhus’ imponerende smukke klitlandskab! En helt unik oplevelse. 

Her er fire soverum i samme plan samt hems. Sengefordeling: 4 dobbeltsenge. 

I sin tid boede arkitekten selv i huset med sin hustru, kunstneren Anne Just, der skabte  "Anne Justs Have", som er en ikonisk attraktion i Blokhus - en skøn blomsterhave med atelier, kaffehus, butik, værksted og havehotel. Et meget talentfuldt par med styr på æstetikken, hvilket Øjne i Natten simpelthen også udstråler! Der er tale om en unik boligoplevelse. 

Ferieboligen er røgfri og ungdomsgrupper er ikke tilladt. 

Udendørsområde

Sommerhuset ligger på en kæmpe grund, der er over 7000 kvm stor, placeret i første klitrække midt i Blokhus. Her er solterrasse med udespa i den ene ende af huset, og selve glaskuplerne “Øjnene i natten” i den anden ende, hvor der ligeledes er terrasse og det imponerende klitlandskab, blot 30 meter fra stranden. Du er dertil kun 700 meter fra indkøbsmuligheder og 650 meter fra restaurant. 

Huset byder også på en skøn tagterrasse, og hvem vil ikke ønske sig at sidde her og nyde den fantastiske havudsigt? 

Umiddelbart udenfor grunden er der dejlige stisystemer i klitlandskabet og masser af muligheder for oplevelser af enhver slags. Men hvem vil ikke helst blive i det skønne hus? 

Detaljer om dejlige Blokhus 

I Blokhus by skal man koncentrere sig for at kede sig! Blokhus er en af Danmarks mest populære feriebyer og har en af landets bedste badestrande. Der er et væld af oplevelser i byen, både på stranden, i bykernen, og i umiddelbar nærhed af byen. Vi taler Fårup Sommerland, Blokhus Skulpturpark, Anne Justs have, badeland, Fun Park og meget, meget mere! 

 

Udover at gå ture i de dejlige sommerhusområder, er der masser af shopping, koncerter, restauration, skøjtebane om vinteren og vi kunne blive ved! De nærliggende feriebyer Løkken og Lønstrup er også et besøg værd, ligesom Rubjerg Knude Fyr og Jambo Feriepark. For ikke at tale om den kilometerlange sandstrand, hvor du kan opleve de karakteristiske badehuse og bunkere fra fordums tid. Surf eller slap af? Her finder du det hele. Dette er også en af grundene til, at Blokhus er en umådeligt populær destination for sommerhusudlejning ved nordvestkysten - og vi byder alle velkommen! 

 

Lej denne fantastiske feriebolig i dag og se Blokhus gennem disse skønne Øjne i Natten!

Læs mere

Afstande

  • Afstand indkøb 700 m
  • Afstand restaurant 650 m
  • Afstand strand 30 m

Multimedier

  • Antal TV 3
  • Trådløs højtaler Ja
  • Trådløst internet Ja

Hvidevarer

  • Antal ovne 1
  • Elkedel Ja
  • Kaffemaskine Ja
  • Køle-/fryseskab Ja
  • Køleskab liter 630
  • Mikrobølgeovn Ja
  • Opvaskemaskine Ja
  • Quooker Ja
  • Tørretumbler Ja
  • Vaskemaskine Ja

Bad/Toilet

  • Badeværelser 2
  • Dampbad Ja
  • Gennemløbsspa Ja
  • Gulvvarme på badeværelse Ja
  • Toiletter 2
  • Udespa Ja

Soverum

  • Antal Soverum 4
  • Dobbeltsenge 4
  • Ekstra senge 2
  • Hems (antal pladser) 2

Opvarmning

  • Brændeovn Ja
  • Gulvvarme Ja
  • Gulvvarme på badeværelse Ja
  • Varmeblæser Ja

Huset inde

  • Antal tilladte husdyr 1
  • Antal TV 3
  • Byggeår 1976
  • Grundareal m² 7689 m2
  • Havudsigt Ja
  • Husareal 303 m2
  • Husdyr Ja
  • Max antal personer 8
  • Rygning ikke tilladt Ja

Huset ude

  • Aflåseligt skur Ja
  • Havemøbler Ja
  • Udespa Ja
Der er ingen ledige perioder